Продам дуплекс біля парку Перемоги в м. Кропивницький (№ 22-393-487)
Ціна: 110 000 $

Адреса: Вулиця, Кропивницький, Кіровоградська, Масляниківка
Характеристики
| Ціна: | 110 000 $ |
|---|---|
| № об'єкта: | 22-393-487 |
| Тип: | дуплекс |
| Поверхів: | 2 |
| Спалень: | 4 |
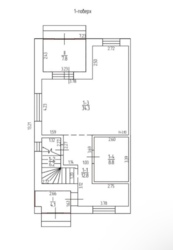
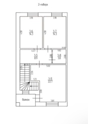
| Площа будинку: | 138 м2 |
| Ділянка: | 4 сот |
Опис
Продам дуплекс біля парку Перемоги в м. Кропивницький
- загальна площа 138 кв.м.
- побудований з високоякісних матеріалів
- є своя свердловина
- земельна ділянка рівної форми, 3.6 та 4.6 сотки
- введений в експлуатацію
- район швидко розбудовується, чудове місце розташування біля парку, 10 хвилин на авто до центру міста.
Телефонуйте для перегляду



















